3028 Sarah Lane
Griffin, GA 30224
$369,900
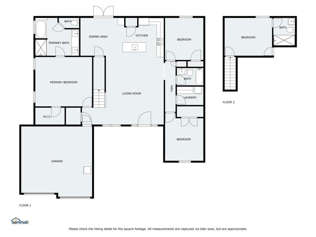
Welcome to this charming 4 bedroom, 3 bath Craftsman ranch style home with gorgeous curb appeal and a well designed floor plan. The covered front porch leads into the open concept living area, ideal for everyday living and entertaining. The kitchen features a breakfast bar, electric range with built-in microwave, tile backsplash, and two pantries for extra storage. The split-bedroom layout offers privacy, with a spacious primary bedroom with a walk-in closet, dual vanity, oversized shower, and soaking tub. Two additional bedrooms and a full bath are on the opposite side of the home, along with a convenient laundry room. Upstairs, a versatile bonus bedroom with a private bath is perfect for guests, a teen suite, or home office. Enjoy outdoor living on the covered back patio with a brick fireplace. The backyard is perfect for relaxing or entertaining year-round.
- SubdivisionWalkers Mill Estates
- Zip Code30224
- CityGriffin
- CountySpalding - GA
Location
- ElementaryFutral Road
- JuniorRehoboth Road
- HighSpalding
Schools
- StatusActive
- MLS #7658788
- TypeResidential
MLS Data
- Bedrooms4
- Bathrooms3
- Bedroom DescriptionMaster on Main, Split Bedroom Plan
- FeaturesCoffered Ceiling(s), Crown Molding, Double Vanity, High Ceilings, High Speed Internet, Open Floorplan, Recessed Lighting, Tray Ceiling(s), Walk-In Closet(s)
- KitchenBreakfast Bar, Cabinets White, Eat-in Kitchen, Kitchen Island, Pantry, Solid Surface Counters, View to Family Room
- AppliancesDishwasher, Electric Range, Microwave
- HVACCeiling Fan(s), Central Air
- Fireplaces1
- Fireplace DescriptionFactory Built, Outside
Interior Details
- StyleRanch, Traditional
- ConstructionBrick, Cement Siding
- Built In2021
- StoriesArray
- ParkingAttached, Driveway, Garage, Garage Door Opener, Kitchen Level, Storage
- FeaturesPrivate Yard
- ServicesHomeowners Association, Pool, Sidewalks, Street Lights
- UtilitiesCable Available, Electricity Available, Phone Available, Underground Utilities, Water Available
- SewerSeptic Tank
- Lot DescriptionLevel, Private, Sloped
- Acres1
Exterior Details
Listing Provided Courtesy Of: Chapman Group Realty, Inc. 678-878-0215
Listings identified with the FMLS IDX logo come from FMLS and are held by brokerage firms other than the owner of
this website. The listing brokerage is identified in any listing details. Information is deemed reliable but is not
guaranteed. If you believe any FMLS listing contains material that infringes your copyrighted work please click here
to review our DMCA policy and learn how to submit a takedown request. © 2026 First Multiple Listing
Service, Inc.
This property information delivered from various sources that may include, but not be limited to, county records and the multiple listing service. Although the information is believed to be reliable, it is not warranted and you should not rely upon it without independent verification. Property information is subject to errors, omissions, changes, including price, or withdrawal without notice.
For issues regarding this website, please contact Eyesore at 678.692.8512.
Data Last updated on May 1, 2026 1:55pm

